孟州市亞通制動材料有限公司創建于1995年,下設孟州市亞通制動材料有限公司焦爐設備配件分公司。公司占地面積50000余平方米,員工480余人,其中具有職稱的技術骨干50余人。經過多年的發展,形成了集研發、生產、銷售、服務于一體的現代化新興企業。
公司主要產品為“亞通牌”搗固機專用搗固錘、摩擦板、剎車帶、取板器、彈性元件及各種焦爐設備配件。先后于大連重工、太原重工、旭陽集團、潞寶集團、等千余家大型集團公司建立了長期穩定的合作關系,并出口印度、巴基斯坦等國外市場。
公司始終以注重企業形象、立足技術開發、加強質量管理、強化品牌意識、優化售后服務為宗旨。經過多年的發展創新,目前已成為國內摩擦材料、機械制造行業的知名企業。
公司董事長兼總經理薛淑躍先生攜全體員工恭迎國內外有識之士蒞臨指導,共創偉業,共鑄輝煌!
一. 用途
搗固機安放在焦爐煤塔側操作間的固定軌道上,當裝煤車進入煤塔下取煤時,將落入槽內的散煤料夯實成具有一定強度的煤餅,便于裝煤車從焦爐機側將煤餅送進碳化室。
二. 操作環境
1. 大氣溫度:-20℃~43℃,相對濕度<90%
2. 震動噪音大。
三. 搗固機主要結構
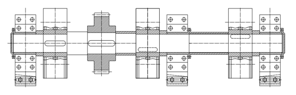
1)搗固機的組成:主要有上部機架、下部機架、導向裝置、電機、減速機、變速機、齒輪傳動裝置、彈性輪裝置、停錘裝置、搗固錘、潤滑系統、電路控制等組成.


如上圖,其中:1.安全擋裝置;2.導向輪裝置;3.彈性輪裝置;4.齒輪組;5.下部機架;6.停錘裝置;7.搗固錘;8.上部機架;9.變速機;10.車輪裝置。
下圖為我公司,安裝調試中的搗固機。

四.工作原理
1)安全擋裝置
安全擋裝置由電動液壓推桿、支座、擋桿、接近開關等組成。當搗固煤餅工作完畢,錘桿提升到原始位置時,電動液壓推桿推動擋桿位于錘頭下方,防止停錘裝置意外失控及誤操作引發的落錘事故。接近開關用來控制電動液壓推桿的前后動作,并與提錘傳動裝置聯鎖。
搗固機安全擋放下后,停錘機構不能松開。

2)導向輥(塊)裝置
導向輥裝置由導向輥輪、導向塊、銷軸等組成,保證錘桿上下平穩運行。 導向輥輪由球墨鑄鐵制作,具有自潤滑性能,維護保養簡便,導向塊材質為高分子聚乙烯材料,耐磨,摩擦系數小。安裝導向輪時一定要檢查是否轉動靈活,轉動不靈活一定要重新裝配。同一錘桿上的各組導向輪(塊)要結合凸輪吊線安裝,保證各組導向輪(塊)處在同一豎直方向上。輪(塊)體到搗固錘的距離開始調整為3mm,導向輥(塊)為易損消耗件,允許磨損2~4mm,磨損后根據磨損狀態及時更換,防止出現亂沖亂撞等非正常磨損。保證搗固錘正常運行,形成良性磨損。


3)彈性輪裝置
彈性輪裝置由凸輪組、對稱可調機構組成組成。系統由電機驅動,通過凸輪組中彈性元件的作用力將錘桿夾緊,由此產生的摩擦力矩將搗固錘提升至固定的高度,自由落體進行煤餅搗固;凸輪組與錘數相對應,根據不同的錘數,按不同的相位角排列在傳動軸上,保證各搗固錘上下錯落有序的工作。每套凸輪裝置有三個凸輪組,夾緊凸輪的中心距可由螺桿進行調整。調整時,兩個螺桿同時順時針旋轉,凸輪同時向錘桿方向移動,每旋轉15°,凸輪單側移動0.3mm,雙側共移動0.6mm。調好后,鎖上鎖緊板。
4)齒輪組裝置

每個傳動設置3個搗固錘。通過齒輪組上的齒輪驅動彈性輪裝置上的齒輪,實現一個傳動,驅動多個獨立的搗固錘傳動。
5)機架
機架由鋼板和型鋼焊接而成,分為上機架和下機架,便于制造、安裝和運輸。


6)停錘裝置
停錘裝置由電動液壓推桿、扇形齒輪、傳動軸、凸輪塊、軸承座、接近開關等組成。停錘時,電動液壓推桿推動扇形齒輪驅動傳動軸旋轉,使凸輪塊在自重作用下貼近錘桿,當錘桿下落時,依靠摩擦阻力夾緊錘桿,阻止錘桿下落。搗固機工作時,傳動軸反向旋轉,使凸輪塊脫離錘桿,錘桿靠自重落下。各軸套由粉末冶金材料制作,具有自潤滑性能,不需人工加油,維護保養簡便。接近開關用來控制電動液壓推桿的前后動作,并與提錘傳動裝置聯鎖。



7)搗固錘
搗固錘由錘體、摩擦板等組成。錘體由工字鋼制作,經打磨、校直后,將摩擦板粘貼并用螺釘把合在錘體上。

五.國內幾種主流搗固機彈性凸輪組結構分析
搗固機工作特點是:為了使搗固錘不受煤層高度變化的影響做往復垂直運動,搗固錘和傳動機構是分開的。
搗固機傳動機構主要由電機帶動減速機、變速箱、傳動齒輪組、彈性輪裝置等組成。彈性凸輪組做對稱旋轉,通過彈性輪提供的擠壓摩擦力,帶動夾在中間的搗固錘做上拋運動,利用搗固錘自由下落產生的重力勢能,將落入槽內的散煤料夯實成具有一定強度的煤餅。
1)單面彈性輪裝置單錘可調整其結構

優點:方便調整,摩擦板使用壽命延長
缺點:由于是單面調整,使得搗固錘逐漸偏離中心線,造成導向裝置壓力加大。結果造成導向裝置損壞加劇,搗固 錘桿磨損嚴重。如果凸輪片平面不能完全和摩擦板平面保持平行,彈性元件受力不均,使用壽命縮短。
2)雙面彈性輪裝置單錘可調整結構(雙面操作)
優點:與單面彈性裝置可調整結構一樣
設計成雙面可調結構是為了解決單面可調結鉤造成的搗固錘偏離中心線的問題,但在實際操作中,由于背面空間小,操作工工作情況等原因,這個問題仍未解決。
3)雙面彈性輪裝置單錘可調結構(單面操作)

優點:調整操作方便,摩擦板壽命延長,同時解決第二、三種結構中存在的問題。
缺點:彈性輪裝置單錘可調結構都存在這樣的問題,由于操作工沒有嚴格按照操作說明要求(彈性輪裝置兩端調整絲桿必須同時給予相同的調整量調整)使得凸輪片平面與摩擦板平面不平行,造成彈性輪中的彈性元件受力不均勻,彈性元件使用壽命大大降低,對于貫通式彈性元件結構的彈性輪裝置,凸輪片和輪轂磨損嚴重,彈性輪失效。
4)彈性輪不可調整結構

優點:結構簡單,便于操作和維修,整機價格低,維修費用少。
缺點:
a)軸承部位是軸瓦結構,磨損后間隙大運行不穩定,造成其它部件損壞速度加劇。
b)由于摩擦板質量問題,需要通過軸承座底部的墊片調整,延長摩擦板的使用壽命。但是具體操作過程中,墊片調整的不合理使得彈性輪與軸位置不同心,造成搗固機不能正常運行。零部件損壞嚴重,搗固錘摩擦板更換頻繁。

5)仿德國的彈性輪不可調整結構(見上圖)
仿德國的彈性輪不可調整結構,是用一組傳動齒輪,帶動在同一根軸上的三組彈性凸輪組,即:前后兩條長軸,每條軸上的相應位置安裝三個彈性凸輪組,凸輪組角度按120°均分,軸承座內裝有軸承。彈性凸輪組由8個孔的輪轂(驅動盤),偏心摩擦片(凸輪緣),連接緣,左右連接板,彈性元件及連接螺栓等部件組成。輪轂的材質為鑄鋼件,采用整體調質處理,均布的8個孔有四個為半透孔,4個為通孔。此設計是為了控制輪轂沿軸向左右竄動。通過以上幾點的重新設計,由于有近似于進口材質性能的摩擦板和導向裝置優異性能的支持。彈性輪裝置采用不可調整結構完全可以再加上軸承采用調心滾子軸承,即使有所磨損幾乎對前后凸輪片之間的間隙沒有影響。加油頻繁的潤滑點很少,大大降低了潤滑油脂和潤滑器材的使用。彈性元件使用壽命得以延長。可達8個月以上。彈性輪裝置的維修完全可以不用拆下來。既縮短維修時間又降低維修工勞動強度。簡單的結構使得易損零部件數量很少,相應的減少了備品件的庫存.

6)結論
綜上所述,不論是單面可調還是雙面可調結構,在使用過程中都必須調整,調整到位且恰到好處,是保證搗固機正常工作的關鍵。可是這到位恰到好處,說起來容易做起來難,這需要經驗豐富的熟練操作工人,由于經驗不足及操作不當,出現以下問題:
a )做對稱旋轉的同一組彈性凸輪組,兩側軸承座中心線不平行,且兩側軸承座松緊不一致。則搗固錘摩擦板兩面磨損不均勻,磨出斜面,摩擦板損壞的快,更換頻繁。
b)同一機架上的三組彈性凸輪組分別在三條中心線上。則帶動彈性凸輪組做對稱旋轉的傳動齒輪組上的傳動軸,承受多種應力,既有扭轉應力,又有剪切應力,摩擦板傳動軸損壞快,更換頻繁。
7)仿德國的彈性輪不可調整結構優點
a)三組彈性凸輪組軸承座出廠調整到位(由專用量具檢測),保證了兩側凸輪組分別在同一條軸線上,保證了傳動齒輪組上的傳動軸受力均勻,使用壽命長。
b) 凸輪組中的橡膠彈簧(件2、)是我廠研制的仿德國產品,保證了產品質量。


在圖中還可以看出,橡膠彈簧受力面積大,單位面積的擠壓應力小,延長了使用時間,其使用壽命為8個月。
同一凸輪組還設計了兩種凸輪緣,其厚度相差4mm,即使用第 一種凸輪緣,搗固錘摩擦板磨損后,可換上第二種凸輪緣繼續使用,搗固錘使用壽命可達一年零三個月。
※ 保證搗固錘做上拋運動的擠壓摩擦力,是彈性凸輪組的位置和彈性凸輪組中的彈性元件彈力及搗固錘摩擦板的摩擦系數。決定搗固機使用壽命的關鍵零部件是彈性凸輪組及搗固錘摩擦板。
我廠選用優先仿德國的彈性輪不可調整結構,首先保證了彈性凸輪組的軸承座處于位置。第二是我廠研制的仿德國產品橡膠彈簧,產品通過了國際質量管理體系認證,使用壽命長,彈性柔和、保證搗固錘摩擦板處于工作狀態。

六.導向裝置
大多數導向裝置采用的是導向輪,內部有油道潤滑和軸承結構,材料有QT450和45鋼。由于搗固錘在上下往復運動中不一定總是在中心線上,再加上煤箱內煤料平面的不平整,造成搗固錘和導向輪之間碰撞,磨損速度加快,噪音大。

通過對市場上國內外搗固機使用情況的調研,本著節約、采優去劣的觀點出發,經過公司技術生產人員的討論分析驗證,主要從以下幾點重新設計:
1)導向塊裝置

導向裝置由導向塊、支架、螺栓、調整墊片組成,每錘根據情況有三組或四組正面和側面導向,導向塊采用高分子聚乙烯材料,輕便耐用,更換方便,既保證搗固錘在垂直方向的運動,又達到對錘桿的零損傷,并且噪音低。(注:對于移動和微移動搗固機,建議側導向使用我公司設計的導向輪)
1)導向輪(塊)裝置

如上圖,導向輪(塊)裝置選取了導向輪裝置和導向輪塊裝置各自的長處,既有球墨鑄鐵制作導向輥裝置,其作用是控制搗固錘左,右偏移,與錘桿的鋼材部分接觸。又有高分子聚乙烯材料的導向塊裝置,其作用是控制搗固錘前、后偏移,與錘桿的非金屬材摩擦板接觸。二者配合,保證錘桿上下平穩運行。
七.搗固錘
我廠制造的 搗固錘桿體采用22a型工字鋼,搗固錘總重調整到420Kg左右,以降低搗固機的工作負荷,確保在達到一定的提錘高度的情況下,減少設備的損壞效率,摩擦板選用各項指標接近德國進口材質的材料加工制作,摩擦板的使用壽命在正常使用的情況下達到8個月以上。

八. 上、下部機架:
機架全部采用鋼板焊接,強度高,抗震動性能好,不容易開焊和斷裂。





我公司的搗固機已被國內許多廠家采用,使用過程中反映效果良好。我公司還承接搗固機改造工作,即在不改變原搗固機基本尺寸的條件下,將關鍵部位改造成先進的結構形式。如改造凸輪組,使橡膠彈簧使用壽命為8個月,使搗固錘使用壽命可達一年零三個月等。隨著后續工作的不斷改進和完善,我公司生產的搗固機一定會被更多的廠家接納采用。








